林鍵:冠江墅——展現空間的藝術美學
瀏覽量:192
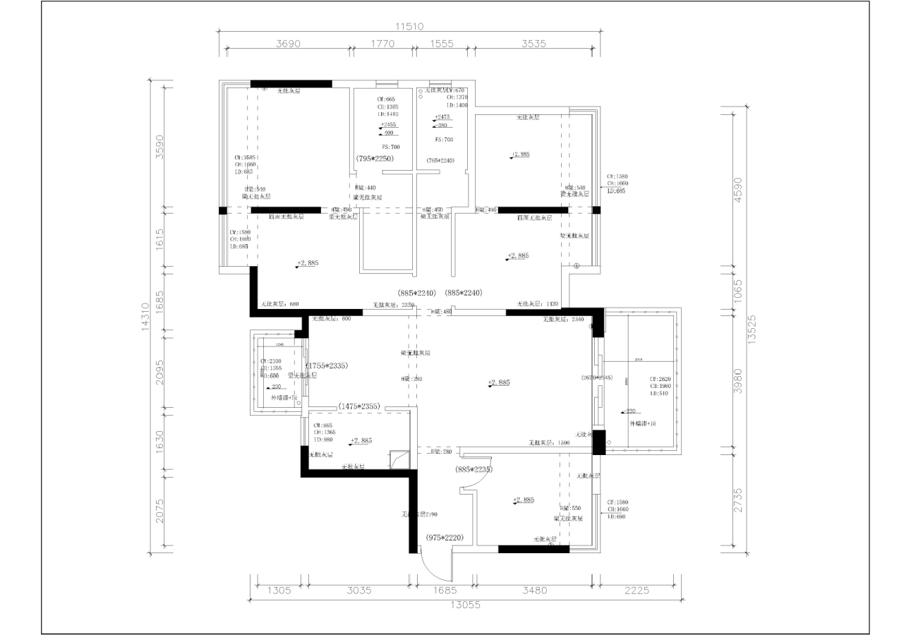
原始戶型圖
本次的業主是一對小輕這個房子是作為婚房使用有打算要寶寶又做飯的需求。希望有一間小書房希望能有物品的收納空間父母偶爾會來小住。喜歡有線條感的設計,希望陽光灑下的感覺。

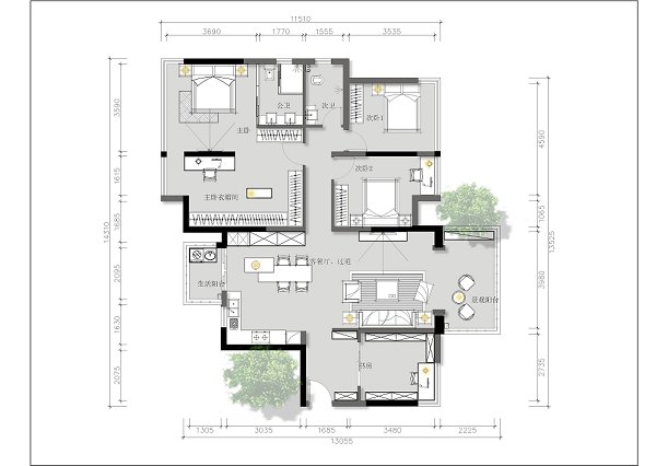
平面布置方案
在做規劃的時候我們要了解客戶的家庭成員構成和他們的需求和喜好根據他們的想法來設計除了空間設計合理還要考慮實際生活中關注的問題例如材質的選用收納的空間多維度的思考才能為客戶設計一個滿意的家。
客廳效果圖VS客廳實景圖



整個空間變得更加寬闊通透,視野也有一定的拓展,藍色系的空間在整個空間當中變得更加大氣,再加上灰綠色的布藝沙發,灰色的茶幾在色調上有的用的沖擊性豐富了整個空間當中的層次。
餐廳效果圖VS餐廳實景圖



相比較于公共空間淺的色調,灰色系的設計更顯典雅奢華。設計師運用簡單的設計線條勾勒簡約的現代美
相關案例推薦RELATED TO THE CASE
查看更多案例-
現代風格丨 四居室以上 丨120-150㎡
-
現代風格丨 三居室 丨80-120㎡
-
極簡風格丨 三居室 丨80-120㎡
-
其它風格丨 三居室 丨80-120㎡
預約整裝設計方案服務
*已有【1000+】人成功預約
設計資訊DESIGN INFORMATION
查看更多資訊-
-
15
2022-05
南寧自有工人的裝修公司
南寧自有工人的裝修公司,說到裝修,自... 查看詳情>> -
15
2022-05
如何選南寧裝修公司省錢又省心?
在南寧新房裝修如何選擇裝修公司省錢又... 查看詳情>> -
15
2022-05
南寧新房選裝修公司一定要看這8大保障!
南寧新房裝修怎么選裝修公司,這8大保... 查看詳情>> -
15
2022-05
南寧新房裝修怎么選裝修公司?
不操心的裝修,往往是大部分人對房子裝... 查看詳情>> -
15
2022-05
南寧裝修公司怎么選?
說到裝修,大部分業主最先聯想到的就是... 查看詳情>>




